Lidar as built drawings renovation projects in Littleton, Colorado

Lidar As-Built Drawings specializes in high-precision as-built documentation using advanced 3D laser scanning, BIM modeling, and 2D CAD plans.
Our services support renovation projects, ensuring that architects and homeowners have a complete and reliable digital foundation.


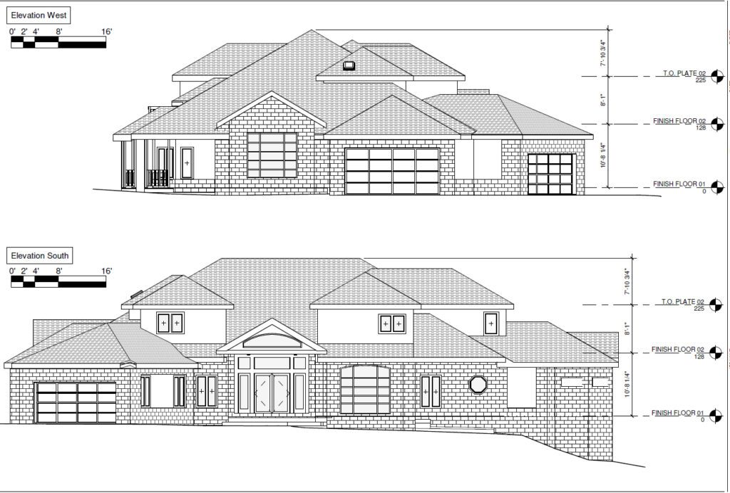
For a recent project in Littleton, Colorado, we used 3D laser scanning to document every detail of a home. First, our team captured the home’s layout and architectural finishes with high-resolution point cloud data. This data allowed us to transform the existing conditions into an accurate 3D BIM model. With this model, the architectural team could easily plan and visualize potential updates. Not only does this method improve accuracy, but it also saves time in planning.


In addition to the BIM model, we created detailed 2D CAD plans. These CAD drawings are essential for creating accurate floor plans and integrating with traditional workflows. They provide the renovation team with clear, actionable insights, ensuring that the project stays aligned with the homeowner’s vision. This step-by-step documentation is essential for efficiency, making it easier to communicate ideas and collaborate.
Lidar As-Built Drawings offers more than just scan-to-BIM services; we provide peace of mind. Our process reduces the risk of design errors and keeps the project moving smoothly. With our point cloud data, architects can quickly understand the property’s structure and existing conditions. Additionally, these CAD plans and laser scans simplify the process for contractors and designers, supporting them with precise information at every stage.
Our 3D laser scanning and scan-to-BIM services cater to architects, contractors, and homeowners alike. By choosing Lidar As-Built Drawings, clients gain access to expert as-built documentation that supports thoughtful design enhancements and efficient renovations. With accurate data and clear documentation, we help turn renovation ideas into reality.
Transform your space with accurate data you can trust. Contact us today!
